2 d cad drawing of section B house plan auto cad software
Description
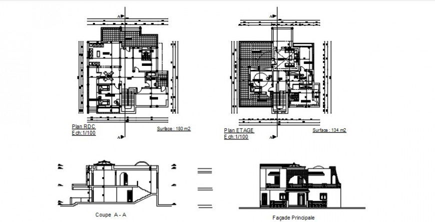
2d cad drawing of section B house plan autocad sofftware detailed with plan andd section with details and mentioned cut section with alloted rooms and elevation with windows doors seen inn the drawing.
Uploaded by:
Eiz
Luna

